Haus zum Kauf Heimeliges Wohnhaus mit Carport, Stellplatz und Garten

Bilder anzeigen (30)
Barbara Tretter Portrait

Kaufpreis

429.000 €

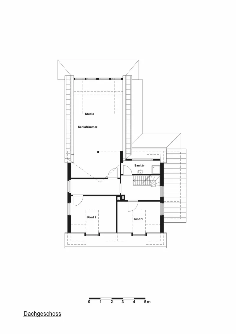
  • Wohnfläche (ca.) 170 m²
  • Grundstück (ca.) 771 m²
  • Nutzfläche (ca.) 79 m²
  • Zimmer 7
  • Kaufpreis 429.000 €
  • Käuferprovision 2,975 % inkl. MwSt.
  • Objekt-Nr 292
  • verfügbar ab Nach Absprache
  • Baujahr 1957
  • Unterkellert Ja
  • Zustand gepflegt
  • Wintergarten
  • Anzahl Stellplätze 2
  • Stellplatzpreis 0 €
  • Stellplätze 2
  • Anzahl Schlafzimmer 3
  • Anzahl Badezimmer 2
  • Anzahl separate WCs 4

Ihre Anfrage

Energiebedarfsausweis

0255075100125150175200225250
215,40 kWh/(m²*a)
  • Endenergiebedarf 215,40 kWh/(m²*a)
  • Befeuerungsart oel
  • Wesentlicher Energieträger OEL
  • Energieeffizienzklasse G
  • Gültig bis 14.06.2035